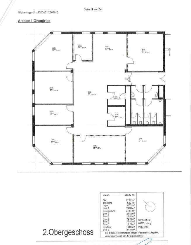
Die angebotene Gewerbeeinheit befindet sich in der zweiten Etage eines repräsentativen Bürogebäudes in der beliebten Leipziger Südvorstadt und umfasst nahezu eine komplette Gebäudehälfte. Die Einheit bietet eine funktionale und zugleich großzügige Raumaufteilung und eignet sich ideal für Büro-, Praxis- oder Dienstleistungsnutzungen.
Der Zugang erfolgt über einen zentralen Flurbereich, von dem aus zunächst die sanitären Anlagen erreichbar sind. Diese sind getrennt für Damen und Herren ausgeführt. Die Damen-WC-Anlage verfügt über zwei Toiletten, während im Herrenbereich zwei Toiletten sowie zwei Urinale vorhanden sind. Ergänzt werden die Sanitärbereiche durch entsprechende Waschbecken.
Der anschließende Hauptbereich der Gewerbeeinheit umfasst insgesamt sieben großzügige Büroräume, die flexibel und individuell genutzt werden können – beispielsweise als Einzel- oder Teambüros, Besprechungsräume oder Arbeitsbereiche.
Darüber hinaus steht ein großzügiger Empfangsbereich zur Verfügung, der ausreichend Platz für einen Empfangstresen sowie zusätzliche Arbeits- oder Wartebereiche bietet. Ergänzend gehören ein kompakter Lagerraum, eine Teeküche mit Einbauküche sowie ein separater Serverraum zur Einheit.
Das auf den Fotos sichtbare Inventar kann bei Bedarf übernommen werden.
Ein Aufzug im Gebäude sorgt für einen komfortablen Zugang zur Etage. Die Gewerbeeinheit ist ab sofort bezugsfrei und bietet somit flexible Nutzungsmöglichkeiten für verschiedene Gewerbearten.
Die Kantstraße liegt im gefragten Leipziger Stadtteil Südvorstadt, der für seine urbane Lebendigkeit, kurze Wege und hohe Wohnqualität bekannt ist. Die Innenstadt ist schnell erreichbar, gleichzeitig prägen zahlreiche Cafés, Restaurants und Grünflächen das direkte Umfeld.
Erholung & Grün
Der Fockeberg befindet sich nur wenige Schritte entfernt und bietet eine beliebte Aussicht über die Stadt. Der Clara-Zetkin-Park sowie der Johannapark sind ebenfalls schnell erreichbar und bieten weitläufige Erholungsflächen.
Einkaufen & Versorgung
Supermärkte, Apotheken sowie Einrichtungen des täglichen Bedarfs befinden sich in fußläufiger Entfernung, insbesondere entlang der Karl-Liebknecht-Straße.
Gastronomie & Urbanes Leben
Zahlreiche Cafés, Bars und Restaurants prägen das Viertel und sind in wenigen Gehminuten erreichbar.
Verkehrsanbindung
Mehrere Straßenbahn- und Buslinien an den nahegelegenen Haltestellen Kurt-Eisner-Straße und Südplatz sorgen für eine sehr gute Anbindung. Der Leipzig Hauptbahnhof ist in ca. 10 Minuten mit dem Fahrrad oder rund 12 Minuten mit dem ÖPNV erreichbar.
Bildung & Betreuung
Kindertagesstätten, Schulen sowie die Universität Leipzig befinden sich im näheren Umfeld und sind gut erreichbar.
Fazit
Eine zentrale und zugleich lebenswerte Lage mit hervorragender Infrastruktur, viel Grün und urbanem Flair – ideal für alle, die zentrales Wohnen mit hoher Lebensqualität verbinden möchten.
* 7 Büroräume
* 1 Serverraum
* 1 Lagerraum
* 1 Teeküche
* 1 Empfangsbereich
* 1 Damen-WC á 2 Toiletten
* 1 Herren-WC á 2 Toiletten, 2 Pissoir
Hinweis zur Richtigkeit und Vollständigkeit der Angaben:
Der Makler weist darauf hin, dass die von ihm weitergegebenen Objektinformationen vom Verkäufer bzw. von einem vom Verkäufer beauftragten Dritten stammen und von ihm, dem Makler, auf ihre Richtigkeit nicht überprüft worden sind. Es ist Sache des Kunden, diese Angaben auf ihre Richtigkeit hin zu überprüfen. Der Makler, der diese Informationen nur weitergibt, übernimmt für die Richtigkeit keinerlei Haftung.