Entwicklungsobjekt – 2.171 m² Nutzfläche – 5.045 m² Grundstück

  • 220.000€
04610 Meuselwitz Falkenhain

Überblick

  • Büro / Praxis
  • Objektart
  • 27
  • Zimmer
  • 2171

Details

Aktualisiert am April 30, 2026 beim 7:34 p.m.
  • Objekt ID: HZ501228
  • Preis: 220.000€
  • Objektgröße: 2171 m²
  • Grundstücksfläche: 5045 m²
  • Zimmer: 27
  • Objektart: Büro / Praxis
  • Objektstatus: Zu Verkaufen
  • Vermietet: nein

Informationen

  • Anzahl Etagen: 3,0
  • Käuferprovision: 7,14 %
  • Hinweis zur Courtage: Die Provision in Höhe von 7,14 % inkl. MwSt. vom Kaufpreis ist vom Käufer zu tragen.
  • Wohnfläche: 2.171 m²
  • Gesamtfläche: 2.106 m²
  • Bürofläche: 2.106 m²
  • Bodenbelag: Fliesen
  • Badausstattung: Fenster im Badezimmer
  • Zustand: sanierungsbedürftig

Beschreibung

Entwicklungsobjekt – mitten im Grünen – Ortsrand – naturnah
Gelegen in einem gewachsenen Wohngebiet. Vielfältigste Nutzungen sind hier möglich.

Historie trifft Zukunft
Willkommen in Falkenhain – einem charmanten Ortsteil von Meuselwitz, wo Vergangenheit und Zukunft aufeinandertreffen. Auf einem großzügigen, über 5.000 m² großen Grundstück wartet ein historisches Schulensemble darauf, neu entdeckt zu werden. Drei markante Gebäude – jedes mit eigenem Charakter – eröffnen Raum für kreative Ideen, gemeinschaftliches Wohnen, kulturelle Projekte oder professionelle Nutzung.

Ob als Atelierhaus, Bildungsstätte, Co-Working-Space oder Refugium für Visionäre – hier ist Platz für Neues. Umgeben von Natur und doch gut angebunden, verbindet dieses Ensemble ländliche Ruhe mit vielfältigem Potenzial.

Charakter trifft Potenzial
Das Anwesen besteht aus drei massiven Gebäuden – jedes mit eigenem Charakter:
Die Alte Schule (spätes 19. Jahrhundert):
Ein romantischer Klinkerbau mit Charme und Geschichte. Zwei Vollgeschosse, ein ausgebautes Dachgeschoss und ein Keller bieten Raum für Wohnen, Ateliers oder gemeinschaftliche Projekte. Alte Dielen, große Fenster und hohe Räume erinnern an vergangene Zeiten und laden zur kreativen Neugestaltung ein.

Das Hauptgebäude (30er Jahre + DDR-Erweiterung):
Ein L-förmiger, großzügiger Komplex mit zwei Vollgeschossen, Dachboden und Unterkellerung – verbunden mit der Alten Schule. Perfekt für eine gemischte Nutzung: von Wohneinheiten über Büros, Werkstätten bis hin zu gemeinschaftlichen Räumen. Der rechte Flügel – das ehemalige Lehrerhaus – eignet sich besonders gut für den Umbau in zwei stilvolle Wohnungen oder ein großzügiges Einfamilienhaus.

Verfügbare Flächen
– 1.024 m² mögliche Wohn-/Gewerbefläche
– 500 m² Nutzfläche: Flure, Treppen, Lager, Keller
– 584 m² Grundfläche Ausbaureserve

Das Heizhaus (ehemalige Energiezentrale):
Separat gelegen im hinteren Teil des Grundstücks, bietet es Entwicklungspotenzial – als Werkstatt, Lager, Tiny House oder Gästehaus.

Wofür eignet sich dieses Ensemble?
– Wohnprojekte & Mehrgenerationenwohnen
– Künstlerkollektive, Kulturstätten, Ateliers
– Soziale oder pädagogische Einrichtungen
– Coworking- oder Therapiezentrum
– Tiny-House-Gemeinschaft mit historischem Hauptgebäude
– Rückzugsort für Visionäre mit Blick ins Grüne

Sanierungsbedarf = Gestaltungsspielraum
Zugegeben: Die Gebäude sind grundlegend sanierungsbedürftig. Doch das eröffnet Spielraum – für moderne Energiekonzepte, nachhaltige Materialien, kreative Raumlösungen. Bauen Sie hier Ihre eigene Welt – statt sich in ein Raster zu fügen.

Lage mit Seele
Falkenhain – ein ruhiger Ortsteil von Meuselwitz – bietet ländliche Idylle, Naturanschluss und dennoch kurze Wege in die Stadt. Leipzig, Gera und Altenburg sind gut erreichbar. Ein Ort für alle, die Ruhe und Potenzial zugleich suchen.

Falkenhain, ein idyllischer Stadtteil von Meuselwitz, zeichnet sich durch eine ruhige Wohnlage und eine gute Anbindung an die umliegenden Städte aus. Die Umgebung bietet eine ausgewogene Mischung aus ländlicher Idylle und urbaner Nähe.

Verkehrsanbindung
Bushaltestelle “Prößdorf – Lucka”: 1,5 km entfernt.
Fahrzeit zum nächstgelegenen Bahnhof: Die Fahrzeit mit öffentlichen Verkehrsmitteln zum Bahnhof Profen beträgt etwa 10 Minuten.
Fahrzeit mit dem Auto: Etwa 8 Minuten.
Autobahnanschlussstelle: Die nächstgelegene Autobahnanschlussstelle befindet sich in etwa 23 km Entfernung.

Einkaufen & Versorgung
Supermärkte:
EDEKA in Meuselwitz: 6 km entfernt.
REWE in Meuselwitz: 6,5 km entfernt.

Krankenhäuser:
Klinikum Altenburger Land in Altenburg: 20 km entfernt.

Apotheken:
Schnaudertal-Apotheke in den Westpassagen, Meuselwitz: 6 km entfernt.

Erholung & Natur
Parks und Grünflächen
Kirche Falkenhain mit angrenzendem Park in der Karl-Liebknecht-Straße, 04610 Meuselwitz.

Kultur & Freizeit
Freibad Meuselwitz: 6,5 km entfernt.
SV Falkenhain mit Sportplatz: 1 km entfernt.
Theater Altenburg: 20 km entfernt.
Stadtmuseum Meuselwitz: 6 km entfernt.

Bildungseinrichtungen
Kita “Sonnenschein” in Falkenhain: 1 km entfernt
Grundschule Meuselwitz: 6 km entfernt.
Regelschule Meuselwitz: 6 km entfernt.
Hochschule für Technik, Wirtschaft und Kultur Leipzig (HTWK Leipzig): Etwa 50 km entfernt.

Die Lage in Falkenhain bietet eine harmonische Verbindung von ländlicher Ruhe und urbaner Erreichbarkeit. Mit einer Vielzahl von Freizeitmöglichkeiten, einer guten Infrastruktur und der Nähe zu kulturellen Einrichtungen ist dieser Stadtteil ideal für Familien und Pendler gleichermaßen.

In unserem Langexposé finden Sie die Bilddateien sämtlicher Räume, die bemaßten Grundrisse und weitere Unterlagen. Schreiben Sie mich an.

3 massiv errichtete Gebäude
auf großem Grundstück
über 5.000 m²
eben und gestaltbar
2 Vollgeschosse
Dachgeschoss
voll unterkellert
ehemaliges Heizhaus
Sanierungs- und Entwicklungsobjekt.

Der Makler weist darauf hin, dass die von ihm weitergegebenen Objektinformationen vom Verkäufer bzw. von einem vom Verkäufer beauftragten Dritten stammen und von ihm, dem Makler, auf ihre Richtigkeit nicht überprüft worden sind. Es ist Sache des Kunden, diese Angaben auf ihre Richtigkeit hin zu überprüfen. Der Makler, der diese Informationen nur weitergibt, übernimmt für die Richtigkeit keinerlei Haftung.

Energieeffizienz

  • Energieausweis-Jahrgang: nicht benötigt
  • Energieausweis-Gebäudeart: Nichtwohngebäude

Lage

Adresse

Google Maps
  • Stadt Meuselwitz Falkenhain
  • Bundesland Thüringen
  • PLZ 04610
  • Stadtteil Deutschland - Sachsen - Leipziger Umland - Falkenhain
  • Land Deutschland

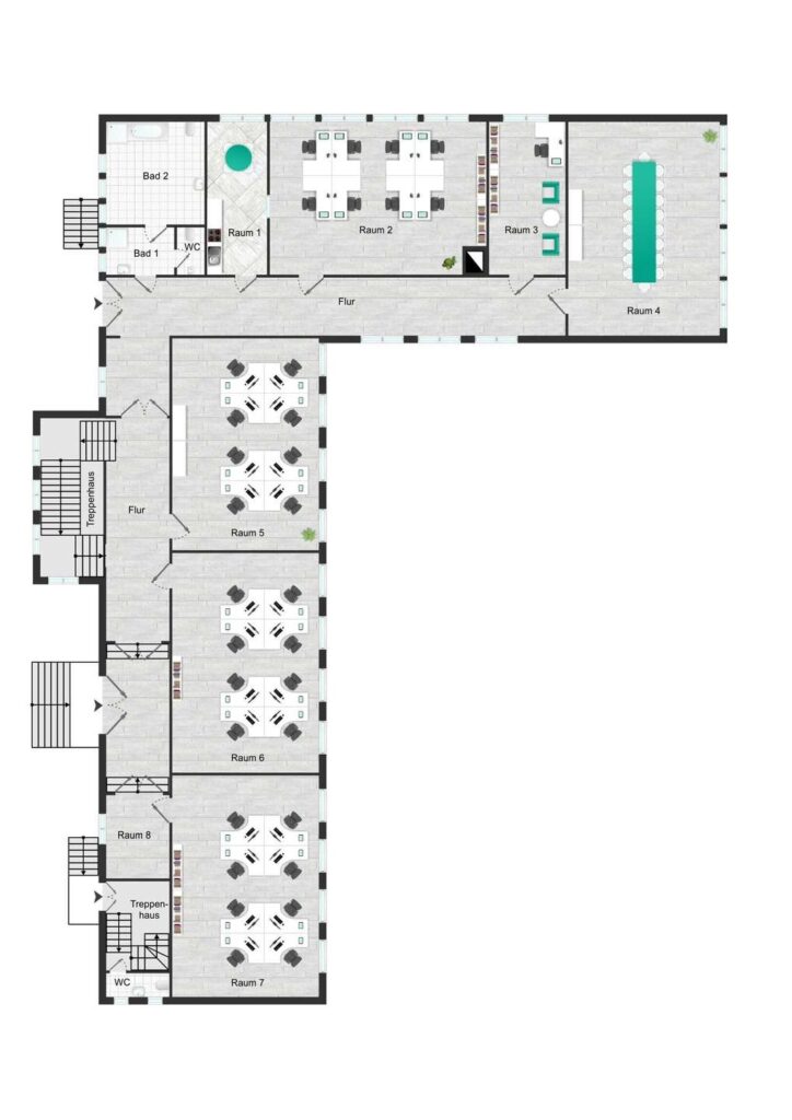
Grundrisse

image

Beschreibung:

image

Beschreibung:

image

Beschreibung:

image

Beschreibung:

image

Beschreibung:

image

Beschreibung:

image

Beschreibung:

Compare listings

Vergleichen