Direkt an der B2: Lagerhalle/ Hochregalhalle/ Industriehalle | eigene Zufahrt + Stellplätze

  • 2.998€
Zschortauer Straße 1, 04129 Leipzig

Überblick

  • Halle
  • Objektart
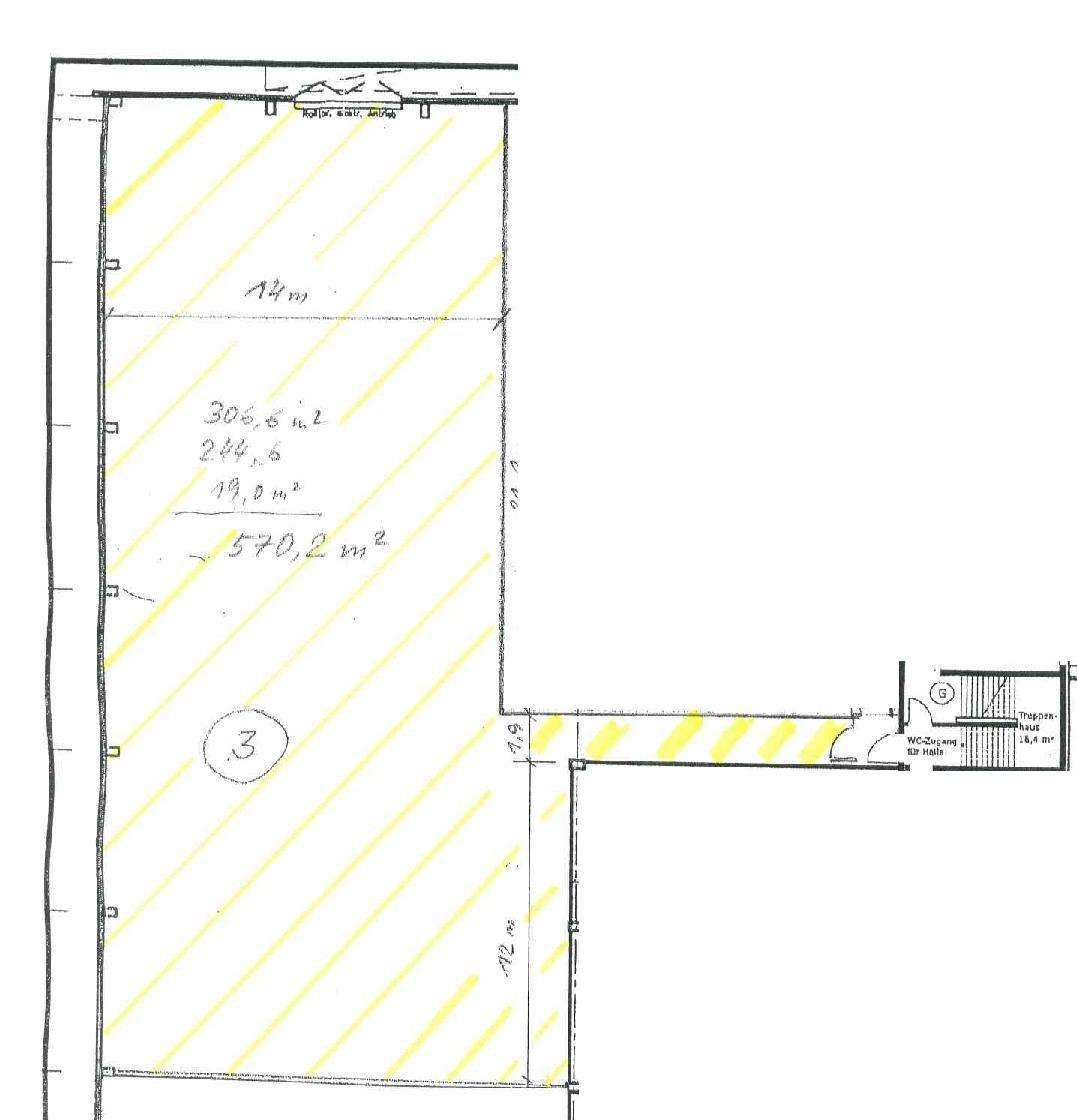
  • 570

Details

Aktualisiert am April 6, 2026 beim 12:01 a.m.
  • Objekt ID: HZ502942
  • Preis: 2.998€
  • Objektgröße: 570 m²
  • Objektart: Halle
  • Objektstatus: Zu Vermieten
  • Immobilie ist verfügbar ab: 01.02.2026
  • Vermietet: nein

Informationen

  • Etage: 0
  • Kaltmiete: 2.998 €
  • Warmmiete: 3.511 €
  • monatl. Betriebs-/Nebenkosten: 513 €
  • Gesamtfläche: 570 m²
  • Lagerfläche: 570 m²
  • Befeuerung: Öl

Beschreibung

Diese großzügige Lagerhalle bietet mit ca. 570 m² Nutzfläche ideale Bedingungen für Logistik, Handwerk oder Gewerbe. Die hohen, lichtdurchfluteten Räume ermöglichen eine flexible Nutzung und die Unterbringung auch großer Maschinen oder Regalsysteme.

Über eine eigene Toreinfahrt erreichen Sie das Gelände bequem – so ist ein reibungsloser An- und Abtransport garantiert. Ein kleines Bürohäuschen steht für Verwaltung oder Pausenbereich bereit, ergänzt durch sanitäre Anlagen (WCs).

Mehrere Stellplätze auf dem Grundstück bieten ausreichend Platz für Mitarbeiter und Kundenfahrzeuge.

Die hervorragende Lage direkt an der B2 sorgt für eine optimale Erreichbarkeit und Sichtbarkeit – perfekt für Unternehmen, die Wert auf gute Verkehrsanbindung legen.

Das Gewerbe befindet sich in einem Gewerbegebiet in Eutritzsch, einem der beliebtesten Stadtteile in Leipzig. Die Umgebung ist vor allem durch die hervorragende Infrastruktur, die Nähe zum Zentrum und die grüne Umgebung gekennzeichnet.

Durch die hervorragende Anbindung mit den öffentlichen Verkehrsmitteln ist man in 13-15 Minuten in der Innenstadt.

– super Lage an der B2
– große hohe Räume
– Deckenhöhe 6,50m
– kleines Bürohäuschen
– WCs
– 2 Stellplätze

Energieeffizienz

  • Primärenergieträger: Öl
  • Energieausweis-Gebäudeart: Nichtwohngebäude

Besonderheiten

Adresse

Google Maps
  • Adresse Zschortauer Straße 1
  • Stadt Leipzig
  • Bundesland Sachsen
  • PLZ 04129
  • Stadtteil Deutschland - Sachsen - Leipzig, Stadt - Eutritzsch
  • Land Deutschland

Kontakt

Anfrageformular

Datenschutzerklärung

Compare listings

Vergleichen
Shenja Shorina
  • Shenja Shorina