In familiärer Wohnanlage! Stellplatz und Garage | Balkon | Fußbodenheizung | Grill- und Spielplatz

  • 1.200€
04838 Eilenburg

Überblick

  • Maisonette-Wohnung
  • Objektart
  • 5
  • Zimmer
  • 1
  • Bad
  • 4
  • Schlafzimmer
  • 112
  • 2027
  • Baujahr

Details

Aktualisiert am Dezember 2, 2025 beim 12:01 a.m.
  • Objekt ID: HZ502071
  • Preis: 1.200€
  • Objektgröße: 112 m²
  • Schlafzimmer: 4
  • Zimmer: 5
  • Bad: 1
  • Baujahr: 2027
  • Objektart: Maisonette-Wohnung
  • Objektstatus: Zu Vermieten
  • Vermietet: nein

Informationen

  • Kaltmiete: 1.200 €
  • Warmmiete: 1.430 €
  • monatl. Betriebs-/Nebenkosten: 230 €
  • Kaution: 2 Kaltmieten
  • Anzahl Außenstellplätze: 2
  • Außenstellplatzmiete: 85 €
  • Wohnfläche: 112 m²
  • Balkone: 1
  • Anzahl Stellplätze: 2
  • Art der Ausstattung: gehoben
  • Bodenbelag: Fliesen, Laminat
  • Badausstattung: Dusche, Badewanne, Fenster im Badezimmer
  • Stellplatzart: Garage, Freiplatz
  • Zustand: Erstbezug

Beschreibung

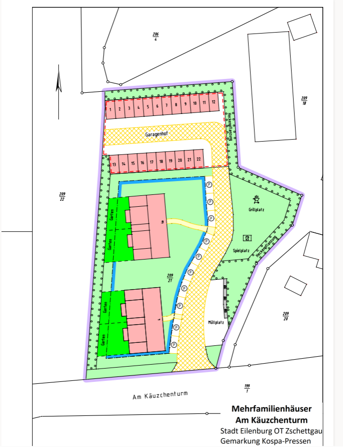
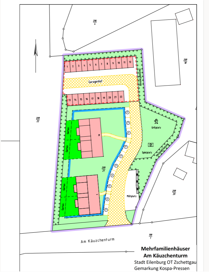
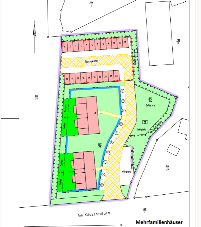
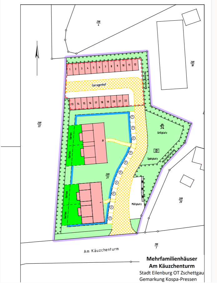
Diese hochwertige Wohnung entsteht in einem idyllischen Wohngebiet, das durch einen eigenen Spielplatz und einen gemeinschaftlich nutzbaren Grillplatz besonders familienfreundlich gestaltet ist. Wer ruhiges Wohnen im Grünen mit Nähe zur Stadt sucht, wird sich hier rundum wohlfühlen.

Diese Wohnung überzeugt durch ihre erstklassige Ausstattung sowie eine durchdachte Raumaufteilung. Die Wohnräume sind mit attraktivem Laminat ausgestattet, während stilvolle Fliesen in Küche und Bad für ein modernes, elegantes Ambiente sorgen. Das großzügige, lichtdurchflutete Wohnzimmer bietet direkten Zugang zu einem geräumigen Balkon, ideal zum Entspannen an sonnigen Tagen. Die offen gestaltete Küche besticht durch ihr edles Design und schafft eine angenehme Verbindung zwischen Kochen und Wohnen.

Das helle Tageslichtbad ist mit Badewanne und Dusche ausgestattet und bietet somit höchsten Komfort. Im oberen Geschoss befinden sich zwei vielseitig nutzbare Wohn- oder Arbeitsräume sowie eine charmante Galerie mit Blick in den unteren Wohnbereich.

Ein praktischer Hauswirtschaftsraum bietet Platz für Waschmaschine und Trockner sowie zusätzlichen Stauraum.

Zur Wohnung gehören:
– 2 Stellplätze: ein Außenstellplatz (25 € mtl.) und eine Garage (60 € mtl.)

Die gesamte Wohnanlage ist mit einer energieeffizienten Luft-Wärme-Pumpe ausgestattet.
Die Stromversorgung erfolgt zentral über den Eigentümer, ein Anbieterwechsel ist daher nicht möglich.
Die monatlichen Stromkosten betragen pauschal 120 € und werden verbrauchsgenau zum Tarif der Stadtwerke abgerechnet.

Kostenübersicht
– Kaltmiete: 1200€
– Nebenkosten: 230 €
– Stromkosten: 120 €
– Außenstellplatz: 25 €
– Garage: 60 €

Hinweis:
Die gezeigten Fotos stammen aus einer Musterwohnung mit identischem Grundriss und wurden noch vor Fertigstellung aufgenommen.

Zschettgau, ein idyllischer Ortsteil von Eilenburg, besticht durch seine ländliche Ruhe und die Nähe zur Natur. Hier genießen Sie die Vorzüge des dörflichen Lebens, ohne auf die Annehmlichkeiten der Stadt verzichten zu müssen. Die Umgebung lädt zu Spaziergängen und Radtouren ein und bietet gleichzeitig eine gute Anbindung an das städtische Leben.

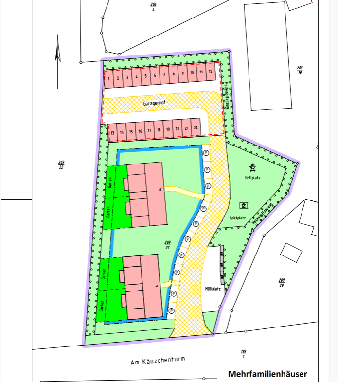
Freizeitangebote in der Anlage:
– ein eigener Grillplatz für die Anwohner
– ein eigener Spielplatz für die Kinder der Anwohner zum spielen
– eigener Garagenpark

Verkehrsanbindung:
– Bushaltestelle “Zschettgau”: ca. 180 m entfernt, bedient von der Linie 212 (Eilenburg – Selben)
– Bahnhof Eilenburg: ca. 6,7  km entfernt, mit der S-Bahn-Linie S4 erreichen Sie den Leipziger Hauptbahnhof in ca. 27 Minuten
– Autobahnanschluss A14 (Anschlussstelle Leipzig-Nordost): ca. 12,5  km entfernt

Einkaufen & Versorgung:
– Aldi Nord: ca. 4,5 km
– REWE Supermarkt: ca. 5 km entfernt
– Netto Marken-Discount: ca. 6  km entfernt
– Apotheke “Berg Apotheke”: ca. 5 km entfernt
– Postfiliale Eilenburg: ca. 6,5 km entfernt

Erholung & Natur:
– Stadtpark Eilenburg: ca. 6,3 km entfernt, ideal für Spaziergänge und Erholung
– Rund herum viele Wanderwege mit viel grün zum entspannen

Kultur & Freizeit:
– Tierpark Eilenburg: ca. 6,3 km entfernt, ein beliebtes Ausflugsziel für Familien
– Sportplatz 2,5 m entfernt, für Fußball und andere Sportarten
– Volkshaus Eilenburg: ca. 6,5  km entfernt, Veranstaltungsort für kulturelle Events

Bildungseinrichtungen:
– Kita “Tausend-Fühler”: ca. 450 m entfernt
– Grundschule Eilenburg-Berg: ca. 5,3  km entfernt
– Oberschule Eilenburg-Mitte: ca. 6,2 km entfernt
– Rinckart-Gymnasium Eilenburg: ca. 8,5  km entfernt
– Berufliches Schulzentrum Eilenburg: ca. 14 km entfernt

Die Lage bietet eine harmonische Verbindung von ländlicher Idylle und städtischer Nähe. Mit guter Verkehrsanbindung, vielfältigen Einkaufsmöglichkeiten, zahlreichen Freizeit- und Erholungsangeboten sowie einer soliden Bildungsinfrastruktur ist Zschettgau ein attraktiver Wohnort für Familien, Paare und Berufspendler.

– Fußbodenheizung
– Maisonette
– Rollläden
– Tageslichtbad mit Wanne und Dusche
– Balkon
– Spielplatz und Grillplatz für Anwohner
– Garage und Außenstellplatz

Energieeffizienz

  • Energieausweis-Jahrgang: nicht angegeben
  • Energieausweis-Gebäudeart: Wohngebäude

Besonderheiten

Adresse

Google Maps
  • Stadt Eilenburg
  • Bundesland Sachsen
  • PLZ 04838
  • Stadtteil Deutschland - Sachsen - Nordsachsen - Eilenburg
  • Land Deutschland

Grundrisse

image

Beschreibung:

image

Beschreibung:

Kontakt

Romy Engelmann

Anfrageformular

Datenschutzerklärung

Compare listings

Vergleichen
Romy Engelmann
  • Romy Engelmann