Bezugsfrei! Energieeffizientes Zuhause mit Tageslichtbad + Gäste-WC | Solaranlage | Außenstellplatz

  • 289.000€
04158 Leipzig

Überblick

  • Reihenmittelhaus
  • Objektart
  • 4
  • Zimmer
  • 1
  • Bad
  • 3
  • Schlafzimmer
  • 100
  • 1995
  • Baujahr

Details

Aktualisiert am April 17, 2026 beim 7:42 a.m.
  • Objekt ID: HZ502952
  • Preis: 289.000€
  • Objektgröße: 100 m²
  • Grundstücksfläche: 142 m²
  • Schlafzimmer: 3
  • Zimmer: 4
  • Bad: 1
  • Baujahr: 1995
  • Objektart: Reihenmittelhaus
  • Objektstatus: Zu Verkaufen
  • Immobilie ist verfügbar ab: sofort
  • Vermietet: nein

Informationen

  • Heizungsart: Zentralheizung
  • Anzahl Etagen: 3,0
  • Käuferprovision: 3,57 % inkl. 19 % Umsatzsteuer
  • Hinweis zur Courtage: Provisionsteilung - hälftige Käufer- bzw. Verkäuferprovision in Höhe von je 3,57 % inkl. 19 % Umsatzsteuer vom endgültigen Erwerbspreis (fällig für den Käufer bei Vertragsabschluss und nach Eingang der Verkäuferprovision)
  • Anzahl Außenstellplätze: 1
  • Wohnfläche: 100 m²
  • Balkone: 1
  • Anzahl Stellplätze: 1
  • Befeuerung: Gas
  • Bodenbelag: Fliesen, Laminat
  • Badausstattung: Badewanne, Fenster im Badezimmer
  • Stellplatzart: Freiplatz
  • Zustand: renovierungsbedürftig
  • Letzte Modernisierung: 2025

Beschreibung

Dieses bezugsfreie Reihenmittelhaus aus dem Jahr 1995 bietet auf ca. 100 m² Wohnfläche und einem ca. 142 m² großen Grundstück eine hervorragende Grundlage für Ihre Wohnträume. Mit 4 Zimmern und einer praktischen Raumaufteilung eignet es sich ideal für Paare oder kleine Familien, die ihre eigenen Vorstellungen von einem gemütlichen Zuhause umsetzen möchten.

Der Flur empfängt Sie mit einer praktischen Nische für Ihre Garderobe und einem Gäste-WC. Die Küche ist gut geschnitten und verfügt über ein großes Fenster mit Blick auf den Vorgarten. Das Wohnzimmer überzeugt mit einer großen Fensterfront, die für einen schönen Blick in den Garten sorgt und Zugang zur Terrasse bietet. Der Garten bietet viel Potenzial für Ihre persönliche Gestaltung und ein Gartenhäuschen für zusätzlichen Stauraum.

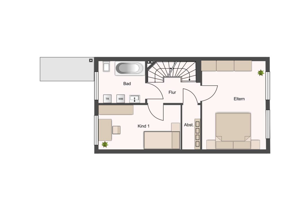
Im Obergeschoss finden Sie zwei Schlafzimmer, die ausreichend Platz für eine Familie bieten. Das Tageslichtbad mit Badewanne rundet das Raumangebot ab, während ein praktischer Abstellraum im Flur zusätzlichen Stauraum bietet.

Das Dachgeschoss ist bereits als Studio ausgebaut und eignet sich hervorragend für ein Homeoffice, ein Kinderzimmer oder einen Hobbyraum. Der Heizungsraum ist ebenfalls im Dachgeschoss untergebracht.

Weitere Merkmale des Hauses:

– Gasheizung aus 2012 und Energieeffizienz A+ für eine gute Energieversorgung
– Neue Dachfenster (2025) sowie eine Solaranlage (2025) mit ca. 4 kWp Leistung und 5 kW Speicher für nachhaltiges Wohnen
– Außenstellplatz vor dem Haus sowie ein praktischer Schuppen für Fahrräder und alltägliche Dinge

Das Haus bietet zahlreiche Möglichkeiten, es nach Ihren Wünschen zu gestalten und mit etwas Handarbeit zu einem perfekten Zuhause zu machen. Die ruhige, gepflegte Siedlung sowie die Nähe zum Leipziger Zentrum machen es zu einer attraktiven Wahl für alle, die ein eigenes Heim suchen.

Vereinbaren Sie noch heute einen Besichtigungstermin und entdecken Sie das Potenzial dieses Hauses!

Lindenthal ist ein grüner und familienfreundlicher Stadtteil im Nordwesten von Leipzig, der durch seine ruhige Wohnlage und gewachsene Struktur überzeugt. Gepflegte Einfamilienhausgebiete, kleine Siedlungen und weite Grünflächen prägen das Bild des Viertels. Besonders beliebt ist Lindenthal wegen seiner naturnahen Umgebung, denn die Felder, Wiesen und Naherholungsbereiche beginnen direkt vor der Haustür. Gleichzeitig bestehen gute Verkehrsanbindungen ins Leipziger Stadtzentrum sowie in die umliegenden Ortsteile.

Lage auf einen Blick:

Verkehrsanbindung
• Bushaltestelle “An der Schule” ca. 180 m entfernt
• S-Bahn Wahren ca. 2,0 km entfernt
• Autobahn A14 ca. 4,2 km entfernt

Einkauf & Versorgung
• Netto ca. 650 m entfernt
• Aldi: ca. 2,7 km entfernt
• Kaufland: ca. 3,0 km entfernt
• Bäckerei “Steinecke” ca. 750 m entfernt

Erholung & Natur
• Ökobad Lindenthal ca. 700 m entfernt
• Park am Breitenfelder Gutshaus ca. 2,2 km entfernt
• Lindenthaler Wäldchen ca. 2,6 km entfernt

Bildung
• Kita ca. 290 m entfernt
• Alfred-Kästner-Grundschule ca. 280 m entfernt
• Marie-Curie-Schule, Gymnasium ca. 4,2 km entfernt

Schulen, Kitas, Einkaufsmöglichkeiten und zahlreiche Freizeitangebote machen den Stadtteil besonders attraktiv für Familien und Paare. Lindenthal verbindet somit ländliche Ruhe mit der Nähe zur Großstadt – ideal für alle, die entspannt wohnen und dennoch gut angebunden sein möchten.

– Bezugsfrei
– Baujahr 1995
– ca. 100 m² Wohnfläche mit 4 Zimmern
– Tageslichtbad und Gäste-WC
– Eigener Garten
– Ausgebautes Studio
– Gastherme aus 2012 – Energieeffizienz A+
– Solaranlage aus 2025 (ca. 4 kWp Leistung und 5 kW Speicher)
– Außenstellplatz

Hinweis zur Richtigkeit und Vollständigkeit der Angaben:

Der Makler weist darauf hin, dass die von ihm weitergegebenen Objektinformationen vom Verkäufer bzw. von einem vom Verkäufer beauftragten Dritten stammen und von ihm, dem Makler, auf ihre Richtigkeit nicht überprüft worden sind. Es ist Sache des Kunden, diese Angaben auf ihre Richtigkeit hin zu überprüfen. Der Makler, der diese Informationen nur weitergibt, übernimmt für die Richtigkeit keinerlei Haftung.

Energieeffizienz

  • Energieausweis-Art: Verbrauch
  • Energieausweis gültig bis: 10.04.2028
  • Energieverbrauchskennwert: 22,30 kWh/(m²*a)
  • Primärenergieträger: Gas
  • Energieeffizienzklasse: A_PLUS
  • Energieausweis-Ausstellungsdatum: 11.04.2018
  • Energieausweis-Gebäudeart: Wohngebäude

Adresse

Google Maps
  • Stadt Leipzig
  • Bundesland Sachsen
  • PLZ 04158
  • Stadtteil Deutschland - Sachsen - Leipzig, Stadt - Lindenthal
  • Land Deutschland

Grundrisse

image

Beschreibung:

image

Beschreibung:

image

Beschreibung:

Energieklasse

  • Energieklasse: A_PLUS
  • Globaler Energieleistungsindex: 22,30 kWh/(m²*a)
  • A+
  • A
  • B
  • C
  • D
  • E
  • F
  • G
  • H

Kontakt

Romy Engelmann

Anfrageformular

Datenschutzerklärung

Compare listings

Vergleichen
Romy Engelmann
  • Romy Engelmann