Baujahr 2003: Toller Garten | Fußbodenheizung | Pool | Idyllische Siedlung

  • 299.900€
04509 Schönwölkau

Überblick

  • Einfamilienhaus
  • Objektart
  • 4
  • Zimmer
  • 1
  • Bad
  • 3
  • Schlafzimmer
  • 109
  • 2003
  • Baujahr

Details

Aktualisiert am April 21, 2026 beim 6:50 a.m.
  • Objekt ID: HZ5029881
  • Preis: 299.900€
  • Objektgröße: 109 m²
  • Grundstücksfläche: 532 m²
  • Schlafzimmer: 3
  • Zimmer: 4
  • Bad: 1
  • Baujahr: 2003
  • Objektart: Einfamilienhaus
  • Objektstatus: Zu Verkaufen
  • Vermietet: nein

Informationen

  • Anzahl Etagen: 2,0
  • Käuferprovision: 3,57 % inkl. 19 % Umsatzsteuer
  • Hinweis zur Courtage: Provisionsteilung - hälftige Käufer- bzw. Verkäuferprovision in Höhe von je 3,57 % inkl. 19 % Umsatzsteuer vom endgültigen Erwerbspreis (fällig für den Käufer bei Vertragsabschluss und nach Eingang der Verkäuferprovision)
  • Anzahl Carport-Stellplätze: 2
  • Wohnfläche: 109,74 m²
  • Balkone: 1
  • Anzahl Stellplätze: 2
  • Befeuerung: Flüssiggas (eigener Tank)
  • Bodenbelag: Fliesen, Teppich
  • Badausstattung: Dusche, Badewanne, Fenster im Badezimmer
  • Küche: Einbauküche
  • Stellplatzart: Carport, Freiplatz

Beschreibung

Dieses massivgebaute und liebevoll gepflegte Einfamilienhaus befindet sich in einer herrlich ruhigen Siedlungslage. Die verkehrsarme Umgebung bietet Kindern die Möglichkeit, unbeschwert auf der Straße zu spielen, während Naturliebhaber und Hundebesitzer in unmittelbarer Nähe weitläufige Wiesen für entspannte Spaziergänge vorfinden.

Das im Jahr 2003 erbaute Einfamilienhaus überzeugt durch einen praktischen Grundriss und bietet die perfekte Grundlage das Haus noch zu seinem Eigenen zu machen. Insgesamt stehen Ihnen vier Zimmer zur Verfügung, die sich ideal für Paare oder Familien eignen. Für zusätzlichen Komfort sorgt die im gesamten Haus verlegte Fußbodenheizung.
Erdgeschoss:
Der großzügige Wohnbereich bildet das Herzstück des Hauses. Ein schöner Erker schafft hier einen einladenden Essbereich mit viel Tageslicht. Vom Wohnzimmer aus gelangen Sie direkt auf die sonnige Terrasse. Ergänzt wird das Erdgeschoss durch eine separate Küche, ein Gäste-WC sowie eine praktische Abstellkammer.
Obergeschoss:
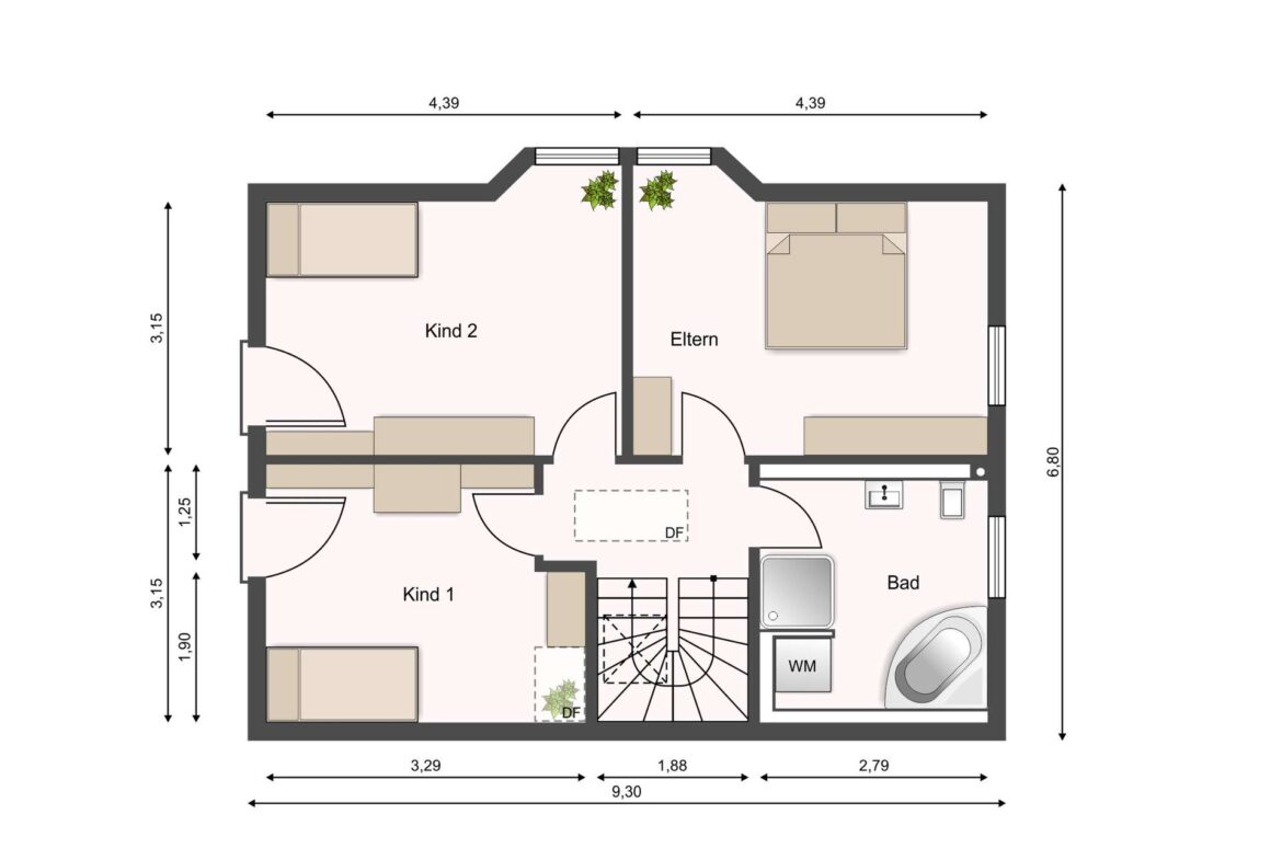
Im Obergeschoss erwarten Sie drei gut geschnittene Schlafzimmer, die flexibel als Kinder-, Arbeits- oder Gästezimmer genutzt werden können. Das Hauptbad ist mit Dusche und Badewanne ausgestattet und bietet auch Platz für die Waschmaschine.
Dachboden:
Auf dem Dachboden findet sich zusätzlicher Stauraum für Gegenstände aller Art.

Außenbereich: ein Paradies für Gartenliebhaber
Der Garten ist mit viel Liebe zum Detail angelegt und ein echtes Highlight der Immobilie. Neben einer befestigten Grillecke mit gemütlichen Sitzmöglichkeiten lädt ein Aufstellpool an warmen Tagen zum Erfrischen ein. Ein kleines Gartenhaus bietet zusätzlichen Stauraum.
Besonders hervorzuheben ist die vielfältige Bepflanzung: Zahlreiche Obststräucher (Heidelbeere, Pfirsich, Aprikose, und viele mehr!), ein Gewächshaus sowie großzügige Flächen für Beete machen dieses Grundstück zu einem Paradies für Hobbygärtner und Selbstversorger.
Die sonnige Terrasse (mit Markise auf der Hauptterrasse) umgibt das Haus gartenseitig und schafft einen idealen Ort zum Entspannen.

Zum Haus gehören ein Carport sowie ein zusätzlicher Außenstellplatz, sodass ausreichend Platz für Ihre Fahrzeuge vorhanden ist. Auf dem Dach ist außerdem ein Balkonkraftwerk installiert.

Bitte beachten Sie!
Das Haus ist voraussichtlich ab dem 01. August 2027 bezugsfrei. Bis dahin wird es noch von den Eigentümern selbst bewohnt.

Willkommen in Gollmenz, einem charmanten Ortsteil der Gemeinde Schönwölkau, dort, wo das Leben noch etwas ruhiger, grüner und persönlicher ist. Wer ein Zuhause für die Familie sucht, findet hier genau das richtige Umfeld: ländlich-idyllisch gelegen, aber dennoch gut über die B2 an Leipzig angebunden (circa 25 Minuten Autofahrtzeit)

Gollmenz bietet genau das, was Familien schätzen: Natur direkt vor der Haustür, eine entspannte Nachbarschaft und viel Platz zum Aufwachsen, Spielen und Durchatmen. Ob Fahrradtouren durch die Felder, kleine Spaziergänge mit dem Hund oder gemeinsame Nachmittage im Garten – hier steht das Familienleben im Mittelpunkt.

In wenigen Autominuten erreichen Sie die umliegenden Orte wie Delitzsch, Bad Düben oder auch das Leipziger Stadtgebiet – ideal für Pendler oder für den schnellen Weg zur Arbeit, Schule oder zum Einkaufen. Kindergärten, Schulen und Einkaufsmöglichkeiten befinden sich im nahen Umfeld und sind gut erreichbar (bspw. in Krostitz: mit dem Auto in 7 Minuten erreichbar, mit dem Bus in 15 Minuten).

Besonders für Familien, die Wert auf Ruhe, Sicherheit und eine naturnahe Umgebung legen, ist das Leipziger Umland immer beliebter. Hier kennt man sich noch, grüßt sich auf der Straße und unterstützt sich im Alltag – ein wertvolles Miteinander, das gerade in der heutigen Zeit viel bedeutet.

– 4 Zimmer | 532 m² Grundstücksfläche
– Massivbau
– Fußbodenheizung
– idyllische und ruhige Siedlung
– toller Garten mit ausgesprochen liebevoller Bepflanzung
– zahlreiche Obststräucher und Bäume (Pfirsich, Aprikose, Birne, Pflaume, Blaubeeren u.v.m.)
– Balkonkraftwerk

Hinweis zur Richtigkeit und Vollständigkeit der Angaben:

Der Makler weist darauf hin, dass die von ihm weitergegebenen Objektinformationen vom Verkäufer bzw. von einem vom Verkäufer beauftragten Dritten stammen und von ihm, dem Makler, auf ihre Richtigkeit nicht überprüft worden sind. Es ist Sache des Kunden, diese Angaben auf ihre Richtigkeit hin zu überprüfen. Der Makler, der diese Informationen nur weitergibt, übernimmt für die Richtigkeit keinerlei Haftung.

Energieeffizienz

  • Energieausweis-Art: Verbrauch
  • Energieausweis gültig bis: 12.04.2036
  • Energieverbrauchskennwert: 129,75 kWh/(m²*a)
  • Warmwasser im Energieverbrauch enthalten: ja
  • Primärenergieträger: Flüssiggas
  • Energieeffizienzklasse: D
  • Energieausweis-Ausstellungsdatum: 13.04.2026
  • Energieausweis-Gebäudeart: Wohngebäude

Adresse

Google Maps
  • Stadt Schönwölkau
  • Bundesland Sachsen
  • PLZ 04509
  • Stadtteil Deutschland - Sachsen - Nordsachsen - Schönwölkau
  • Land Deutschland

Grundrisse

image

Beschreibung:

image

Beschreibung:

Energieklasse

  • Energieklasse: D
  • Globaler Energieleistungsindex: 129,75 kWh/(m²*a)
  • A+
  • A
  • B
  • C
  • 129,75 kWh/(m²*a) | Energieklasse D
    D
  • E
  • F
  • G
  • H

Kontakt

Josephine Willuhn

Anfrageformular

Datenschutzerklärung

Compare listings

Vergleichen
Josephine Willuhn
  • Josephine Willuhn