Wohnen und Gewerbe möglich! | Ehemalige Kindertagesstätte

  • 299.000€
04668 Parthenstein

Überblick

  • Haus
  • Objektart
  • 10
  • Zimmer
  • 3
  • Bäder
  • 4
  • Schlafzimmer
  • 311
  • 1930
  • Baujahr

Details

Aktualisiert am November 28, 2025 beim 7:40 p.m.
  • Objekt ID: HZ502000
  • Preis: 299.000€
  • Objektgröße: 311 m²
  • Grundstücksfläche: 900 m²
  • Schlafzimmer: 4
  • Zimmer: 10
  • Bäder: 3
  • Baujahr: 1930
  • Objektart: Haus
  • Objektstatus: Zu Verkaufen
  • Immobilie ist verfügbar ab: mit Kauf
  • Vermietet: nein

Informationen

  • Heizungsart: Zentralheizung
  • Anzahl Etagen: 2,0
  • Käuferprovision: 3,57 %
  • Hinweis zur Courtage: Provisionsteilung – hälftige Käufer- bzw. Verkäuferprovision in Höhe von je 3,57 % inkl. 19 % Umsatzsteuer vom endgültigen Erwerbspreis (fällig für den Käufer bei Vertragsabschluss und nach Eingang der Verkäuferprovision)
  • Anzahl Außenstellplätze: 2
  • Wohnfläche: 311,56 m²
  • Nutzfläche: 105,5 m²
  • Anzahl Stellplätze: 2
  • Gartenfläche: 300 m²
  • Art der Ausstattung: Standard
  • Befeuerung: Gas
  • Bodenbelag: Fliesen, Teppich, PVC
  • Badausstattung: Badewanne, Fenster im Badezimmer
  • Küche: Einbauküche
  • Stellplatzart: Freiplatz
  • Zustand: renovierungsbedürftig
  • Letzte Modernisierung: 2007

Beschreibung

Das Gebäude wurde in den 1990er-Jahren umfassend zur Kindertagesstätte umgebaut und bis vor Kurzem auch in dieser Funktion genutzt. Im Obergeschoss befindet sich zudem eine vermietete 3-Raum-Wohnung, die etwa die Hälfte der Etage einnimmt und eine solide Teilvermietung darstellt.

Im Jahr 2007 wurde die Einrichtung durch einen modernen, gut tagesbelichteten Flachbau erweitert. Dieser Anbau eröffnet – dank seiner großzügigen Grundfläche und hellen Raumwirkung – vielfältige Möglichkeiten für eine zukünftige Wohn- oder Gewerbenutzung. Mit dem Umzug der KiTa in einen Neubau steht dieser Gebäudeteil nun komplett leer und bereit für neue Ideen.

Der gesamte Keller (bis auf einen Mieterkeller), das komplette Erdgeschoss sowie die freie Hälfte des Obergeschosses bieten flexible Fläche zur individuellen Gestaltung. Ob Wohnen, Praxis, Büro oder eine Kombination aus mehreren Nutzungsarten – nahezu alles ist denkbar. Zwei vorhandene Bäder sowie eine Küche im Erdgeschoss bilden eine solide Basis für unterschiedlichste Konzepte. Neben dem Rückbau der kindgerechten Sanitäreinrichtungen und üblichen Renovierungsarbeiten hängt der Umfang der nötigen Sanierungen im Wesentlichen von der gewünschten Nutzung ab.

Zum frisch gebildeten Grundstück gehört ein ebener, gleichmäßig geschnittener Gartenbereich – ehemals der Spielplatz der Kinder – der sich ideal als Grünfläche, Ruhezone oder zusätzlicher Außenbereich nutzen lässt. Auf dem Grundstück finden 2 bis 3 PKW bequem Platz; je nach Bedarf ist eine Erweiterung der Stellflächen realisierbar.

Ob Arzt- oder Physiotherapiepraxis, Kosmetikstudio, Büro, stilles Gewerbe oder großzügiges Familien- bzw. Mehrgenerationenwohnen: Das Objekt bietet ein außergewöhnliches Spektrum an Möglichkeiten. Die ruhige, grün eingebettete Wohnlage sorgt dabei für ein behagliches Umfeld, das jede Art der Nutzung besonders attraktiv macht.

Im Dachgeschoss stehen zudem rund 145 m² Grundfläche als weitere Ausbaureserve zur Verfügung – ein wertvoller Bonus für künftige Erweiterungswünsche.

Pomßen, ein idyllischer Ortsteil der Gemeinde Parthenstein, vereint auf besondere Weise ländliche Ruhe mit der komfortablen Nähe zur lebendigen Großstadt Leipzig. Eingebettet in eine reizvolle, grüne Umgebung, genießen Bewohner hier ein naturnahes Wohngefühl und zahlreiche Möglichkeiten zur Erholung. Die Landschaft entlang der Parthe sowie die umliegenden Wälder laden zu Spaziergängen, Radtouren und Ausflügen in die Natur ein.

Trotz der ruhigen Lage ist Pomßen hervorragend angebunden. Die Bushaltestelle „Pomßen, Wendeplatz“ liegt nur etwa 800 Meter entfernt und bietet mit der Linie 690 direkte Verbindungen nach Leipzig (Fahrzeit zum Hauptbahnhof ca. 45 Minuten). Der Anschluss an die A14 in Naunhof ist in wenigen Fahrminuten erreicht und sorgt für schnelle Wege in alle Richtungen.

Auch die Infrastruktur rund um den täglichen Bedarf ist gut abgedeckt: In Naunhof befinden sich mehrere Supermärkte – darunter REWE, Lidl, Netto und Aldi – die innerhalb von rund 7 bis 8 Minuten erreichbar sind.

Für Freizeit und Erholung stehen der nahegelegene Parthe-Rad- und Wanderbereich, das Waldgebiet „Naunhofer Forst“ sowie der Sportplatz im Ort zur Verfügung. Kulturelle Angebote wie das Heimatmuseum in Naunhof erweitern die Vielfalt.

Familien profitieren zudem von einer guten Bildungslandschaft: Die Kita „Schloßmäuse“ befindet sich direkt im Ort, während Grundschule, Oberschule und weiterführende Einrichtungen in Naunhof und Brandis schnell erreichbar sind. Die Universität Leipzig liegt rund 22 Kilometer entfernt.

Insgesamt bietet Pomßen eine attraktive Kombination aus naturnahem Wohnen, ruhigem Umfeld und sehr guter Anbindung. Die Nähe zur Autobahn, die vorhandenen Busverbindungen sowie die vielfältigen Freizeitmöglichkeiten garantieren ein hohes Maß an Lebensqualität – ideal für alle, die ein harmonisches Wohnumfeld suchen, ohne auf städtische Annehmlichkeiten verzichten zu müssen.

2 Vollgeschosse
ausbaubares Dachgeschoss
3-Raum-Wohnung – vermietet
2 Stellplätze – erweiterbar
kleiner Garten
großzügige, gut tagesbelichtete Räume
voll unterkellert

Hinweis zur Richtigkeit und Vollständigkeit der Angaben:

Der Makler weist darauf hin, dass die von ihm weitergegebenen Objektinformationen vom Verkäufer bzw. von einem vom Verkäufer beauftragten Dritten stammen und von ihm, dem Makler, auf ihre Richtigkeit nicht überprüft worden sind. Es ist Sache des Kunden, diese Angaben auf ihre Richtigkeit hin zu überprüfen. Der Makler, der diese Informationen nur weitergibt, übernimmt für die Richtigkeit keinerlei Haftung.

Energieeffizienz

  • Energieausweis-Art: Verbrauch
  • Energieausweis gültig bis: 03.12.2033
  • Energieverbrauchskennwert: 127 kWh/(m²*a)
  • Warmwasser im Energieverbrauch enthalten: ja
  • Primärenergieträger: Gas
  • Stromverbrauchskennwert: 7,90 kWh/(m²*a)
  • Heizenergieverbrauchskennwert: 127 kWh/(m²*a)
  • Energieeffizienzklasse: D
  • Energieausweis-Ausstellungsdatum: 04.12.2023
  • Energieausweis-Jahrgang: ab Mai 2014
  • Energieausweis-Gebäudeart: Wohngebäude

Adresse

Google Maps
  • Stadt Parthenstein
  • Bundesland Sachsen
  • PLZ 04668
  • Stadtteil Deutschland - Sachsen - Leipziger Umland - Parthenstein
  • Land Deutschland

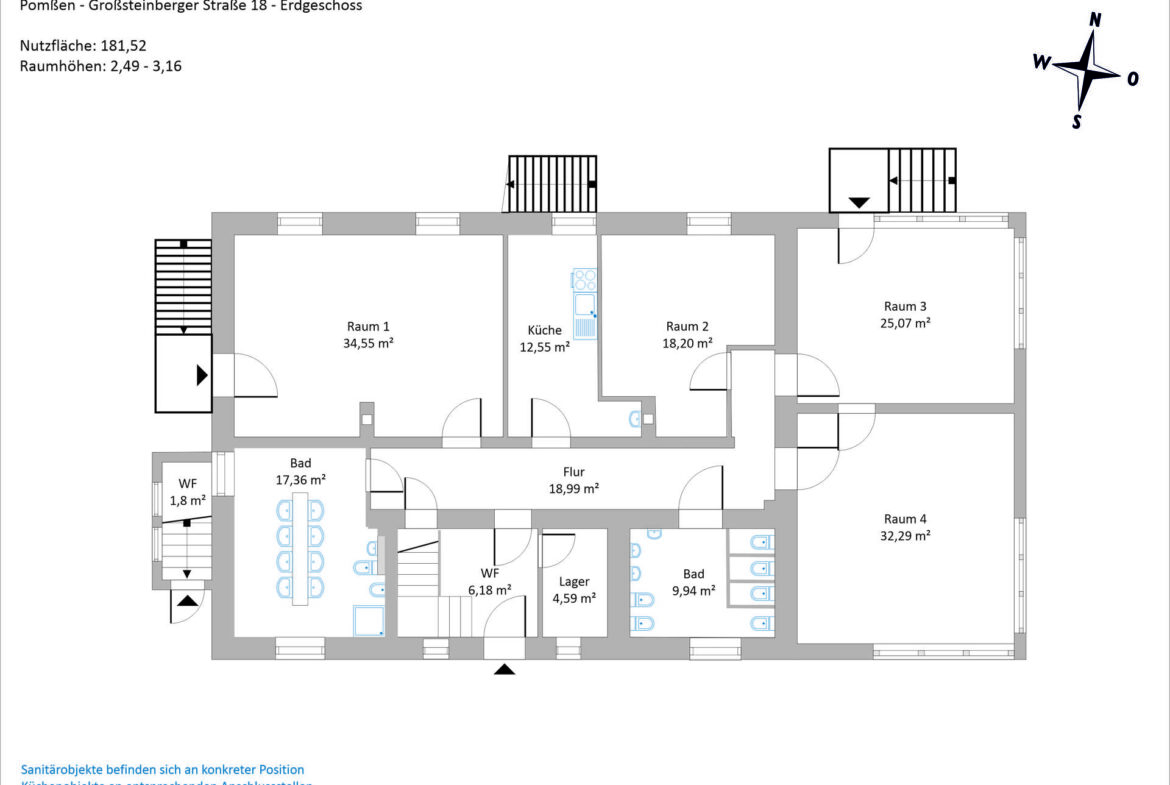
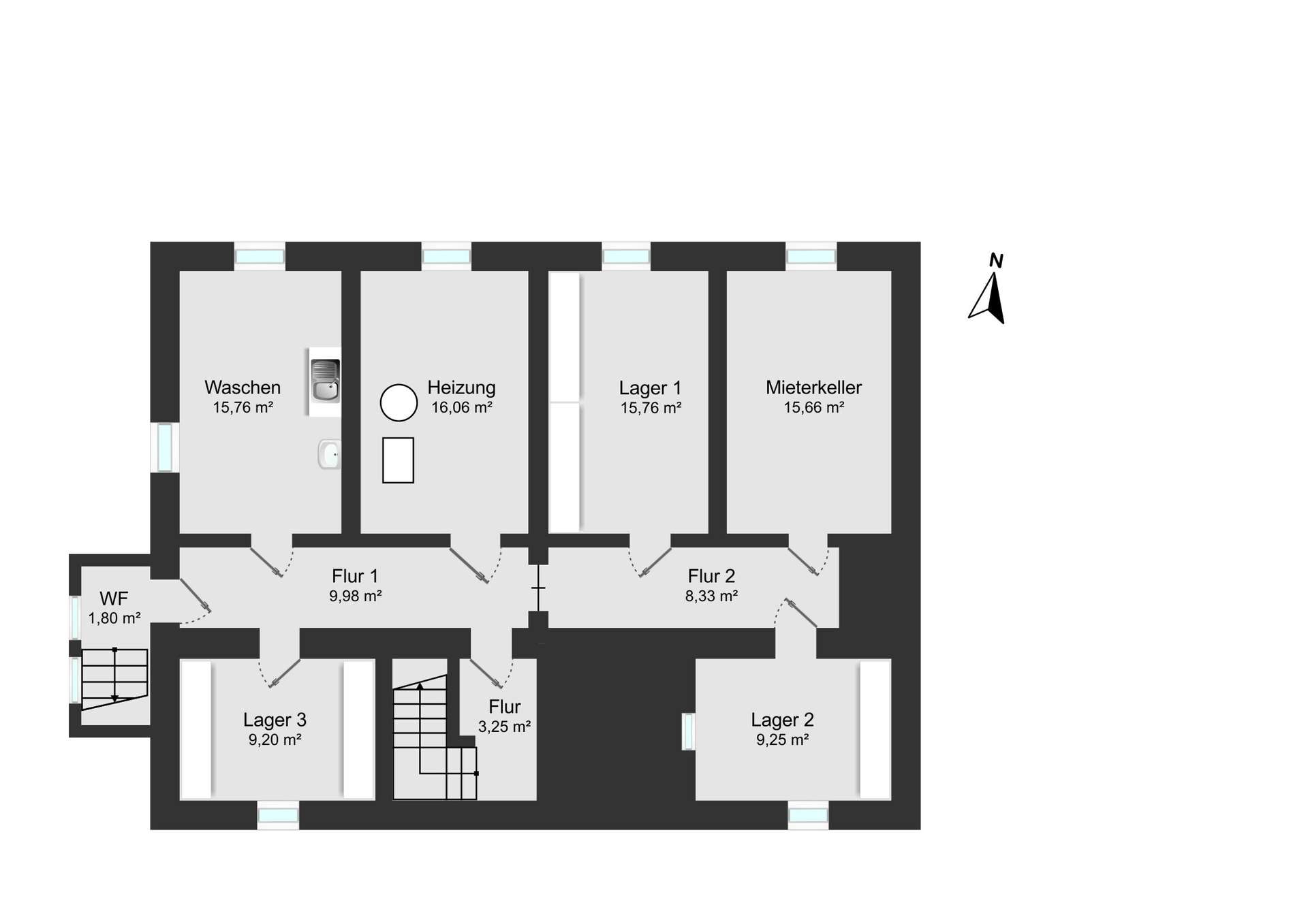
Grundrisse

image

Beschreibung:

image

Beschreibung:

image

Beschreibung:

image

Beschreibung:

image

Beschreibung:

image

Beschreibung:

image

Beschreibung:

image

Beschreibung:

image

Beschreibung:

Energieklasse

  • Energieklasse: D
  • Globaler Energieleistungsindex: 127 kWh/(m²*a)
  • A+
  • A
  • B
  • C
  • 127 kWh/(m²*a) | Energieklasse D
    D
  • E
  • F
  • G
  • H

Kontakt

Anfrageformular

Datenschutzerklärung

Compare listings

Vergleichen
Shenja Shorina
  • Shenja Shorina