Einfamilienhaus mit Potenzial l Kamin l Heizung von 2019

  • 299.000€
04158 Leipzig

Überblick

  • Einfamilienhaus
  • Objektart
  • 4
  • Zimmer
  • 2
  • Bäder
  • 3
  • Schlafzimmer
  • 96
  • 1897
  • Baujahr

Details

Aktualisiert am Februar 27, 2026 beim 12:09 p.m.
  • Objekt ID: HZ502684
  • Preis: 299.000€
  • Objektgröße: 96 m²
  • Grundstücksfläche: 620 m²
  • Schlafzimmer: 3
  • Zimmer: 4
  • Bäder: 2
  • Baujahr: 1897
  • Objektart: Einfamilienhaus
  • Objektstatus: Zu Verkaufen
  • Immobilie ist verfügbar ab: nach Absprache
  • Vermietet: nein

Informationen

  • Anzahl Etagen: 2,0
  • Käuferprovision: 3,57 % inkl. MwSt.
  • Hinweis zur Courtage: Provisionsteilung - hälftige Käufer- bzw. Verkäuferprovision in Höhe von je 3,57 % inkl. 19 % Umsatzsteuer vom endgültigen Erwerbspreis (fällig für den Käufer bei Vertragsabschluss und nach Eingang der Verkäuferprovision)
  • Wohnfläche: 96,34 m²
  • Befeuerung: Gas
  • Bodenbelag: Fliesen, Parkett
  • Badausstattung: Dusche, Badewanne
  • Küche: Einbauküche
  • Stellplatzart: Freiplatz
  • Zustand: sanierungsbedürftig
  • Letzte Modernisierung: 2019

Beschreibung

Dieses charmante Einfamilienhaus wurde im Jahr 1897 in massiver Bauweise errichtet und befindet sich auf einem ca. 620 m² großen Grundstück. Zum Anwesen gehört ein Nebengelass, das zusätzliches Ausbaupotenzial für weiteren Wohnraum bietet. Die Immobilie wird bezugsfrei übergeben und eignet sich ideal für Eigennutzer mit individuellen Gestaltungsideen.

Im Jahr 2019 erfolgte eine umfassende Modernisierung der technischen Gewerke. Dabei wurden die Elektrik, sämtliche Wasserleitungen, die Heizungsanlage sowie der Kamin erneuert. Die Fassade, das Glasdach und das Nebengelass waren nicht Bestandteil dieser Maßnahmen.

Bereits beim Betreten des Hauses empfängt Sie ein großzügiger und einladender Flur, von dem aus alle Räume des Erdgeschosses zugänglich sind. Herzstück des Hauses ist der offen gestaltete Wohn- und Essbereich mit integrierter Küche, der durch seine Großzügigkeit und Helligkeit überzeugt. Der im Zuge der Modernisierung erneuerte Kamin schafft hier eine besonders behagliche Atmosphäre. Die hochwertige Einbauküche ist im Kaufpreis enthalten und fügt sich harmonisch in das Wohnkonzept ein.

Linker Hand befinden sich der praktische Hauswirtschaftsraum mit Anschlüssen für Waschmaschine und Trockner sowie ein separates Arbeitszimmer – ideal für Homeoffice oder Gäste. Ergänzt wird das Raumangebot im Erdgeschoss durch ein modernes Gäste-WC mit ebenerdiger Dusche.

In den Wohnräumen sorgt hochwertiges Korkparkett für eine warme, angenehme Wohnatmosphäre. Für zusätzlichen Komfort wurde pro Geschoss eine separat regulierbare Fußbodenheizung installiert, die eine gleichmäßige und behagliche Wärme gewährleistet.

Über eine stilvolle Treppe gelangen Sie in das Obergeschoss, das dank eines Glasdaches besonders lichtdurchflutet wirkt. Hier befinden sich zwei Schlafzimmer sowie das Hauptbadezimmer mit Badewanne. Vom Hauptschlafzimmer aus ist der Spitzboden erreichbar, der wertvollen zusätzlichen Stauraum bietet.

Das Haus ist teilunterkellert. Im Keller stehen weitere Abstellflächen für Vorräte, die moderne Brennwerttherme sowie die vollständige Netzwerktechnik zur Verfügung, die ebenfalls Bestandteil des Angebots ist.

Das großzügige Grundstück bietet vielfältige Nutzungsmöglichkeiten für Familien und Gartenliebhaber. Ein integriertes Trampolin sowie verschiedene Spielgeräte sind bereits vorhanden und können auf Wunsch übernommen werden. Darüber hinaus wurden bereits Vorkehrungen für die Installation einer Solarthermieanlage sowie für elektrische Jalousien an den straßenseitigen Fenstern im Erd- und Obergeschoss getroffen.

Lindenthal ist ein grüner und familienfreundlicher Stadtteil im Nordwesten von Leipzig, der durch seine ruhige Wohnlage und gewachsene Struktur überzeugt. Gepflegte Einfamilienhausgebiete, kleine Siedlungen und weite Grünflächen prägen das Bild des Viertels. Besonders beliebt ist Lindenthal wegen seiner naturnahen Umgebung, denn die Felder, Wiesen und Naherholungsbereiche beginnen direkt vor der Haustür. Gleichzeitig bestehen gute Verkehrsanbindungen ins Leipziger Stadtzentrum sowie in die umliegenden Ortsteile.

Lage auf einen Blick:

Verkehrsanbindung
• Bushaltestelle “An der Hufschmiede” ca. 170 m entfernt
• S-Bahn Slevogtstraße ca. 2,6 km entfernt
• Autobahn A14 ca. 3,4 km entfernt

Einkauf & Versorgung
• Netto ca. 300 m entfernt
• Edeka: ca. 3,6 km entfernt
• Bäckerei “Lampe” ca. 290 m entfernt

Erholung & Natur
• Ökobad Lindenthal ca. 900 m entfernt
• Park am Breitenfelder Gutshaus ca. 1,6 km entfernt
• Lindenthaler Wäldchen ca. 2,5 km entfernt

Bildung
• Kita ca. 450 m entfernt
• Alfred-Kästner-Grundschule ca. 500 m entfernt
• Marie-Curie-Schule, Gymnasium ca. 3,4 km entfernt

Schulen, Kitas, Einkaufsmöglichkeiten und zahlreiche Freizeitangebote machen den Stadtteil besonders attraktiv für Familien und Paare. Lindenthal verbindet somit ländliche Ruhe mit der Nähe zur Großstadt – ideal für alle, die entspannt wohnen und dennoch gut angebunden sein möchten.

* Bezugsfrei Anfang 2026
* Massives Einfamilienhaus
* 2019 umfassend modernisiert
* 620 m² großes Grundstück
* Nebengelass mit Potenzial zum Ausbau als zusätzlicher Wohnraum
* Großzügiger Wohn- und Essbereich mit offener Küche
* Einbauküche inkl.
* Gemütlicher Kamin
* Gäste-WC mit ebenerdiger Dusche
* HWR mit Waschmaschinen- und Trockneranschluss
* Korkparkett in den Wohnräumen
* Pro Geschoss einzeln regulierbare Fußbodenheizung in allen Räumen
* Video-Wechselsprechanlage
* Lichtdurchflutetes Obergeschoss mit Glasdach
* Badezimmer mit Badewanne im 1. OG
* Spitzboden
* Integrierte Netzwerktechnik inkl.

Hinweis zur Richtigkeit und Vollständigkeit der Angaben:

Der Makler weist darauf hin, dass die von ihm weitergegebenen Objektinformationen vom Verkäufer bzw. von einem vom Verkäufer beauftragten Dritten stammen und von ihm, dem Makler, auf ihre Richtigkeit nicht überprüft worden sind. Es ist Sache des Kunden, diese Angaben auf ihre Richtigkeit hin zu überprüfen. Der Makler, der diese Informationen nur weitergibt, übernimmt für die Richtigkeit keinerlei Haftung.

Energieeffizienz

  • Energieausweis-Art: Bedarf
  • Energieausweis gültig bis: 12.11.2035
  • Endenergiebedarf: 397,65 kWh/(m²*a)
  • Primärenergieträger: Gas
  • Energieeffizienzklasse: H
  • Energieausweis-Ausstellungsdatum: 13.11.2025
  • Energieausweis-Gebäudeart: Wohngebäude

Adresse

Google Maps
  • Stadt Leipzig
  • Bundesland Sachsen
  • PLZ 04158
  • Stadtteil Deutschland - Sachsen - Leipzig, Stadt - Lindenthal
  • Land Deutschland

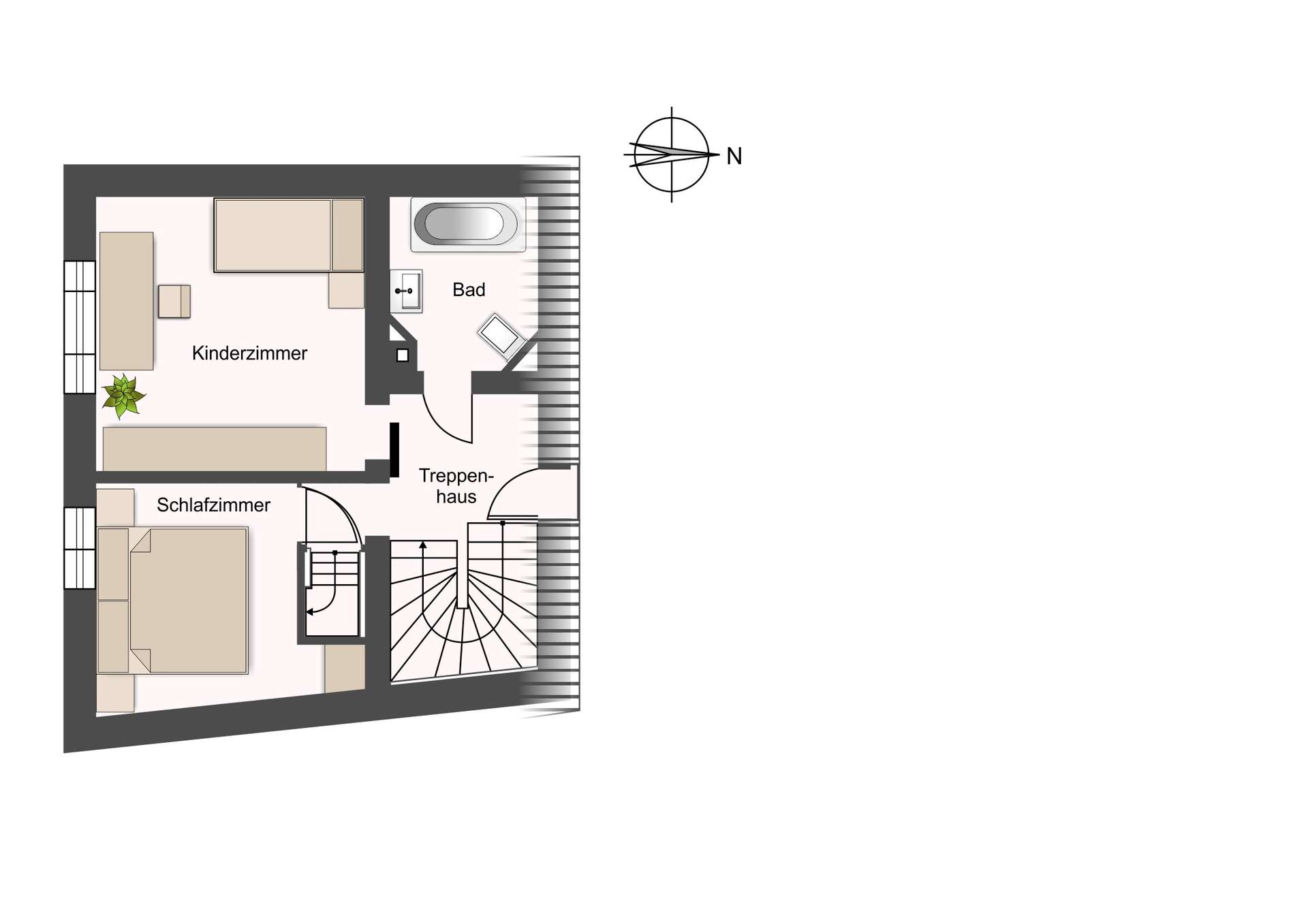
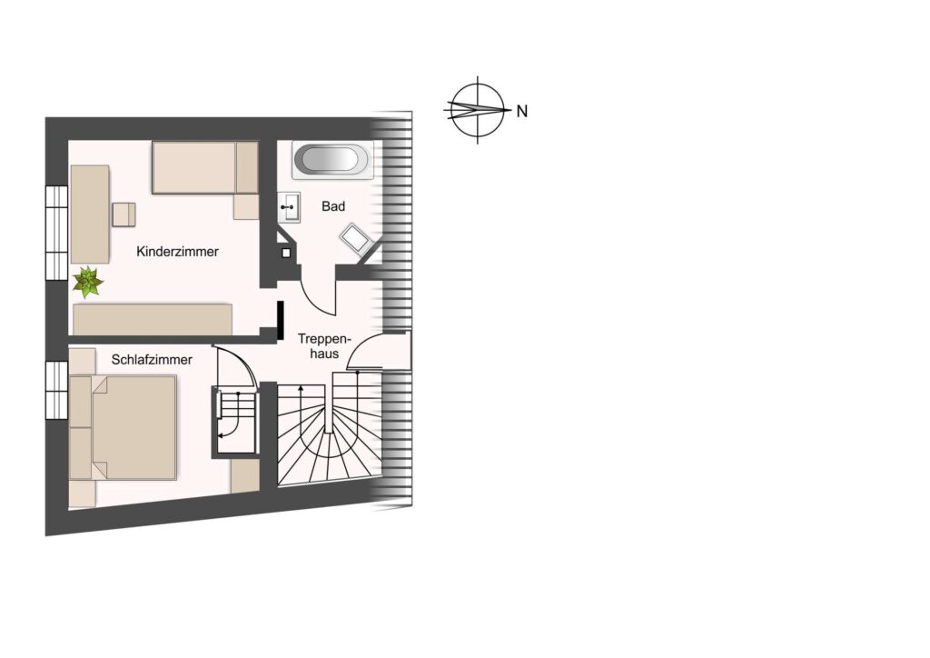
Grundrisse

image

Beschreibung:

image

Beschreibung:

image

Beschreibung:

Energieklasse

  • Energieklasse: H
  • Globaler Energieleistungsindex: 397,65 kWh/(m²*a)
  • A+
  • A
  • B
  • C
  • D
  • E
  • F
  • G
  • 397,65 kWh/(m²*a) | Energieklasse H
    H

Kontakt

Anfrageformular

Datenschutzerklärung

Compare listings

Vergleichen
Kristina Hofmann
  • Kristina Hofmann