Herrschaftliches Anwesen mit eigenem Park – großzügige Nebengelasse – zwischen Leipzig und Dresden

  • 1.250.000€
04769 Sornzig-Ablaß

Überblick

  • Haus
  • Objektart
  • 11
  • Zimmer
  • 3
  • Bäder
  • 6
  • Schlafzimmer
  • 522
  • 1860
  • Baujahr

Details

Aktualisiert am Dezember 1, 2025 beim 12:01 a.m.
  • Objekt ID: HZ356437
  • Preis: 1.250.000€
  • Objektgröße: 522 m²
  • Grundstücksfläche: 6484 m²
  • Schlafzimmer: 6
  • Zimmer: 11
  • Bäder: 3
  • Baujahr: 1860
  • Objektart: Haus
  • Objektstatus: Zu Verkaufen
  • Vermietet: nein

Informationen

  • Heizungsart: Zentralheizung
  • Anzahl Etagen: 3,0
  • Käuferprovision: 3,57 % inkl. Umsatzsteuer
  • Hinweis zur Courtage: Provisionsteilung – hälftige Käufer- bzw. Verkäuferprovision in Höhe von je 3,57 % inkl. 19 % Umsatzsteuer vom endgültigen Erwerbspreis (fällig für den Käufer bei Vertragsabschluss und nach Eingang der Verkäuferprovision)
  • Anzahl Außenstellplätze: 4
  • Wohnfläche: 522,63 m²
  • Balkone: 1
  • Anzahl Stellplätze: 4
  • Art der Ausstattung: gehoben
  • Befeuerung: Öl
  • Bodenbelag: Fliesen, Dielen
  • Badausstattung: Dusche, Badewanne, Fenster im Badezimmer, Bidet
  • Küche: Einbauküche
  • Stellplatzart: Freiplatz
  • Zustand: gepflegt
  • Letzte Modernisierung: 2014

Beschreibung

Wie ein stiller Zeitzeuge erhebt sich dieses herrschaftliche Anwesen aus einer längst vergangenen Epoche und empfängt seine Besucher mit der eindrucksvollen Aura eines imposanten Gutshauses. Liebevoll kernsaniert in den 90er Jahren, dabei in liebevoller Treue zum Originalstil ausgestattet, vereint es geschichtsträchtige Architektur mit zeitgemäßem Wohnkomfort auf eine Weise, die man nur selten findet.

Bereits beim ersten Blick auf die prachtvolle Silhouette wird spürbar, dass dieses Anwesen mehr ist als ein Wohnhaus – es ist ein Refugium voller Charakter, Charme und kultivierter Eleganz. Die Sandsteinfassade, die behutsam restaurierten Originalelemente und das majestätische Dach lassen das Gebäude in einer Anmut erstrahlen, wie sie heute kaum noch geschaffen wird.

Im Inneren entfaltet das Haus seine ganze Größe: Auf rund 523 m² Wohnfläche öffnen sich weitläufige Räume, deren historische Seele durch die letzte umfassende Modernisierung im Jahr 2014 neu erweckt wurde. Hohe Decken, feine Details, handverlesene Materialien und zahlreiche erhaltene Originalelemente schaffen ein Ambiente, das gleichermaßen einlädt, inspiriert und verzaubert. Mindestens sechs Schlafzimmer und drei außergewöhnlich gestaltete Badezimmer bieten großzügigen Raum für Mehrfamilien- oder repräsentatives Wohnen. Jede Etage wirkt wie ein eigenes Kapitel – voller Licht, Atmosphäre und besonderer Momente.

Balkon und Terrasse erweitern das Wohnerlebnis ins Freie und geben den Blick frei auf ein parkähnliches Grundstück, das seinesgleichen sucht: Mehr als 6.400 m² grüne Weite, alte Baumstrukturen und stille Rückzugsorte verschmelzen zu einem privaten Naturparadies. Ein Ort, an dem Vogelgesang und Laubrauschen den Alltag entschleunigen – und an dem jeder Schritt spürbar macht, wie wertvoll Raum und Freiheit sind.

Flankiert wird das Haupthaus von zwei harmonisch eingebetteten Nebengebäuden, die wie Seitenflügel eines historischen Ensembles wirken. Sie eröffnen vielfältige Nutzungsmöglichkeiten – vom Atelier über Gästequartiere bis hin zu Werkstätten, Sammlerräumen oder weiteren Wohnbereichen.

Der Zustand des Haupthauses ist dem Alter entsprechend gepflegt: Die Bauhülle ist intakt, das Dach wurde um 2014 vollständig und fachgerecht mit Kupferblech eingedeckt.

Ein Besuch vor Ort ist ein Erlebnis, das Worte kaum ersetzen können. Hier spürt man die besondere Magie eines Hauses, das mit beeindruckender Sensibilität in die Gegenwart geführt wurde und doch seinen historischen Kern bewahrt.

Eingebettet in eine sanft gewellte Landschaft, die von Feldern, Wiesen und kleinen Baumgruppen geprägt ist, liegt dieses Anwesen an einem Ort, der Ruhe und Weite auf besondere Weise vereint. Hier öffnet sich ein Panorama aus Natur, Ursprünglichkeit und ländlichem Charme – ein Umfeld, das Erholung schenkt, Kreativität freisetzt und Raum für ein Leben im Einklang mit der Umgebung schafft.

Trotz der idyllischen Abgeschiedenheit besticht die Lage durch ihre bemerkenswerte Nähe zu zwei der bedeutendsten Metropolen Mitteldeutschlands: Sowohl Leipzig als auch Dresden sind problemlos erreichbar und eröffnen damit ein breites Spektrum an kulturellen Angeboten, wirtschaftlicher Dynamik und urbaner Infrastruktur. Diese Balance aus ländlicher Gelassenheit und städtischer Anbindung macht den Standort außergewöhnlich wertvoll – für Pendler ebenso wie für alle, die das Beste aus beiden Welten suchen.

Die umliegenden Ortschaften bieten alles, was man für den täglichen Bedarf benötigt: regionale Einkaufsmöglichkeiten, traditionelle Handwerksbetriebe, medizinische Versorgung und kleine gastronomische Angebote, die die regionale Verbundenheit widerspiegeln. Familien profitieren von nahegelegenen Schulen, Kindergärten sowie vielfältigen Freizeit- und Vereinsaktivitäten.

Die Umgebung ist ein Paradies für Naturliebhaber: Spazier- und Wanderwege beginnen nahezu vor der Haustür, Radstrecken führen durch Felder, Wälder und pittoreske Dörfer, und zahlreiche Seen und Ausflugsziele in der Region laden zu Wochenendabenteuern ein. Auch Pferdefreunde, Gartenbegeisterte oder Menschen, die einfach Raum für ihre Hobbys suchen, finden hier optimale Bedingungen.

So entsteht eine Lage, die Seltenheitswert besitzt: abgeschieden genug, um Ankommen und Entschleunigen zu ermöglichen – und gleichzeitig bestens vernetzt, um das moderne Leben mit all seinen Möglichkeiten zu genießen.

– Imposantes Gutshaus mit parkähnlichem Grundstück
– Kernsanierung in den 90ern
– Letzte Modernisierung 2014
– Wohnfläche ca. 522,63 m²
– Grundstücksgröße ca. 6.484 m²
– Mindestens 6 Schlafzimmer & 3 stilvolle Badezimmer
– Repräsentative Raumhöhen und lichtdurchflutete Zimmer
– Balkon und Terrasse mit Blick ins Grün
– Zwei harmonisch in das Ensemble eingebettete Nebengebäude
– Idyllische Lage zwischen Leipzig und Dresden

Hinweis zur Richtigkeit und Vollständigkeit der Angaben:

Der Makler weist darauf hin, dass die von ihm weitergegebenen Objektinformationen vom Verkäufer bzw. von einem vom Verkäufer beauftragten Dritten stammen und von ihm, dem Makler, auf ihre Richtigkeit nicht überprüft worden sind. Es ist Sache des Kunden, diese Angaben auf ihre Richtigkeit hin zu überprüfen. Der Makler, der diese Informationen nur weitergibt, übernimmt für die Richtigkeit keinerlei Haftung.

Energieeffizienz

  • Primärenergieträger: Öl
  • Energieausweis-Jahrgang: nicht benötigt
  • Energieausweis-Gebäudeart: Wohngebäude

Adresse

Google Maps
  • Stadt Sornzig-Ablaß
  • Bundesland Sachsen
  • PLZ 04769
  • Stadtteil Deutschland - Sachsen - Nordsachsen - Mügeln
  • Land Deutschland

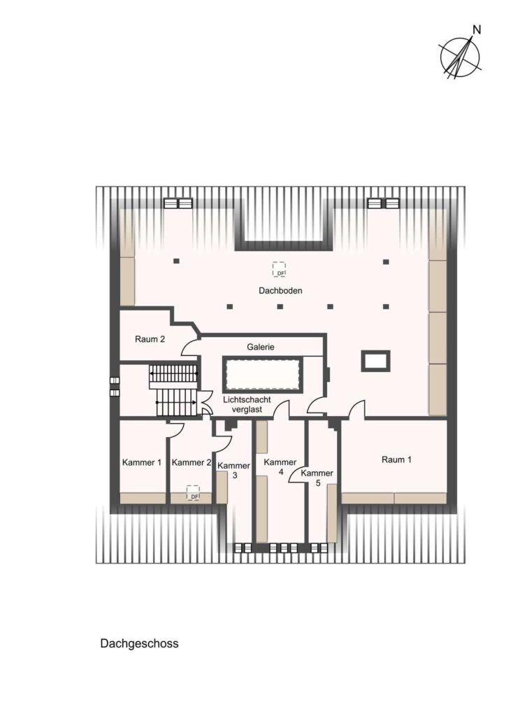
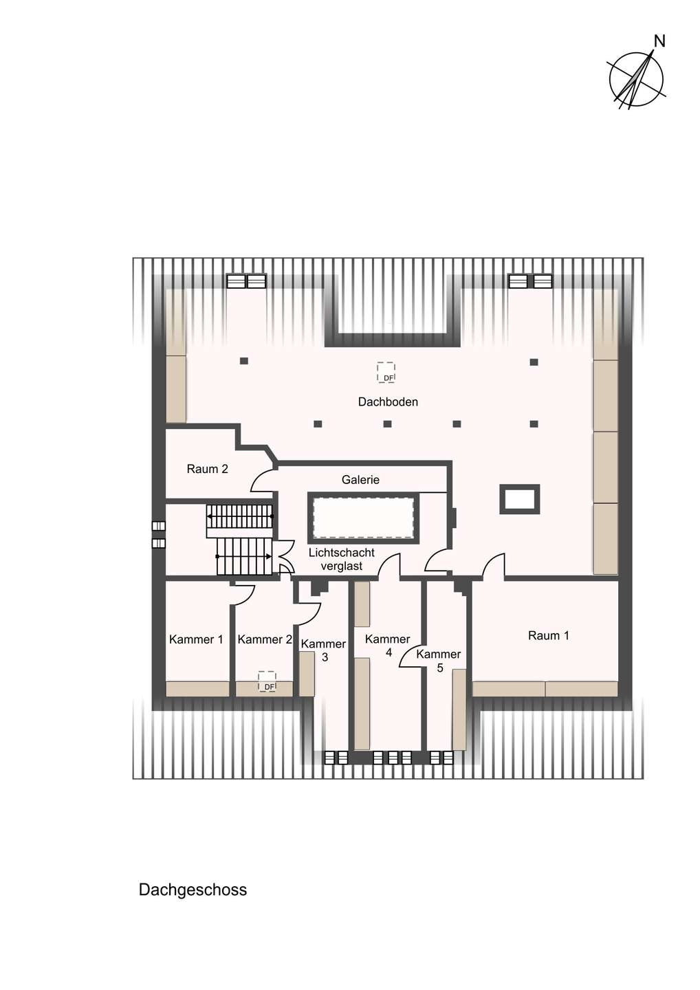
Grundrisse

image

Beschreibung:

image

Beschreibung:

image

Beschreibung:

image

Beschreibung:

Kontakt

Anfrageformular

Datenschutzerklärung

Compare listings

Vergleichen
Shenja Shorina
  • Shenja Shorina